00件
最近見た物件
00件
検討リスト
井の頭線の不動産 アイホープハウス > (賃貸)路線・駅から探す > 京王電鉄京王井の頭線 > 三鷹台駅 > 物件詳細
◆アパート1棟貸の募集開始です ◆お得な礼金なし&再契約料無


※1. 仲介手数料は仮の価格となりますので、実際の価格に関してはお気軽にお問い合わせ下さい。
※2. 1か月を30日として計算しています。
※3. その他費用の項目は、契約事務手数料になります。
| 所在地 | 東京都杉並区久我山4丁目 | ||
|---|---|---|---|
| 交通 | |||
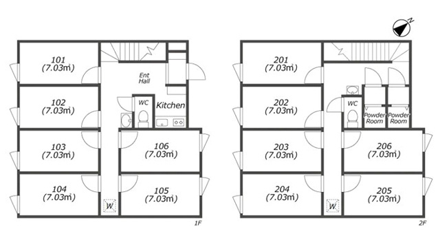
| 間取り/詳細 | 1R | 面積/バルコニー面積 | 121.12㎡/- |
| 賃料 | 65.4万円 | 管理費・共益費 | 180,000円 |
| 敷金/礼金/保証金 | 0ヶ月/0ヶ月/- | 償却/敷引 | -/- |
| 更新料 | - | 敷金積み増し | - |
| 権利金/雑費 | -/- | 駐車場/月額料金 | 近隣/20,000円 |
| 保険加入/料金 | 無/- | 保険名/保険期間 | -/- |
| 保証人代行義務 | 必加入 | 保証会社 | その他 |
| 保証会社詳細 | 初回保証料:総賃料の50%~ 詳細はお問い合わせ下さい。 | 向き | 南西 |
| 築年月(築年数) | 2015年 6月 (築10年) | 契約期間 | 定期借家 1年 |
| 種別/構造 | アパート/木造 | 部屋/所在階/階建 | -/ 1-2階/ 2階建 |
| 総戸数 | - | 現況/入居可能日 | 空家/即時 |
| 特優賃 | - | 取引態様/賃貸区分 | 一般媒介/定期借家権 |
| 物件番号 | 100336862 | 取引条件の有効期限 | 2026年02月24日 |
| 設備条件 |
|
||
| 備考 | ◆杉並世田谷エリア・武蔵野三鷹エリアのお部屋探し、諸条件交渉などお気軽にご相談下さい。地域密着ならではの未公開物件情報・豊富な在庫情報もございます。お問い合わせは03-5941-5888までどうぞ。 | ||
| 条件(その他) | 契約事務手数料:36万円 システム利用料:1万8,000円(月額) | ||
| 取扱会社 |
|
||
| QRコード |
このQRコードを読み取ることで、スマホでも物件情報を確認できます。 |
||
※地図上に表示される物件の位置は付近住所に所在することを表すものであり、実際の物件所在地とは異なる場合がございます。
杉並区久我山4丁目のアパートに関するこだわり条件から探す